Перейти к контенту
Подбор и сравнение проектов домов от застройщиков Московской области
Подборщик домов
Калькулятор сметы
Калькулятор площади
Форум
Блог
Главная
›
Каталог проектов
›
Проект дома «Солнечногорск» | ЭкоТех
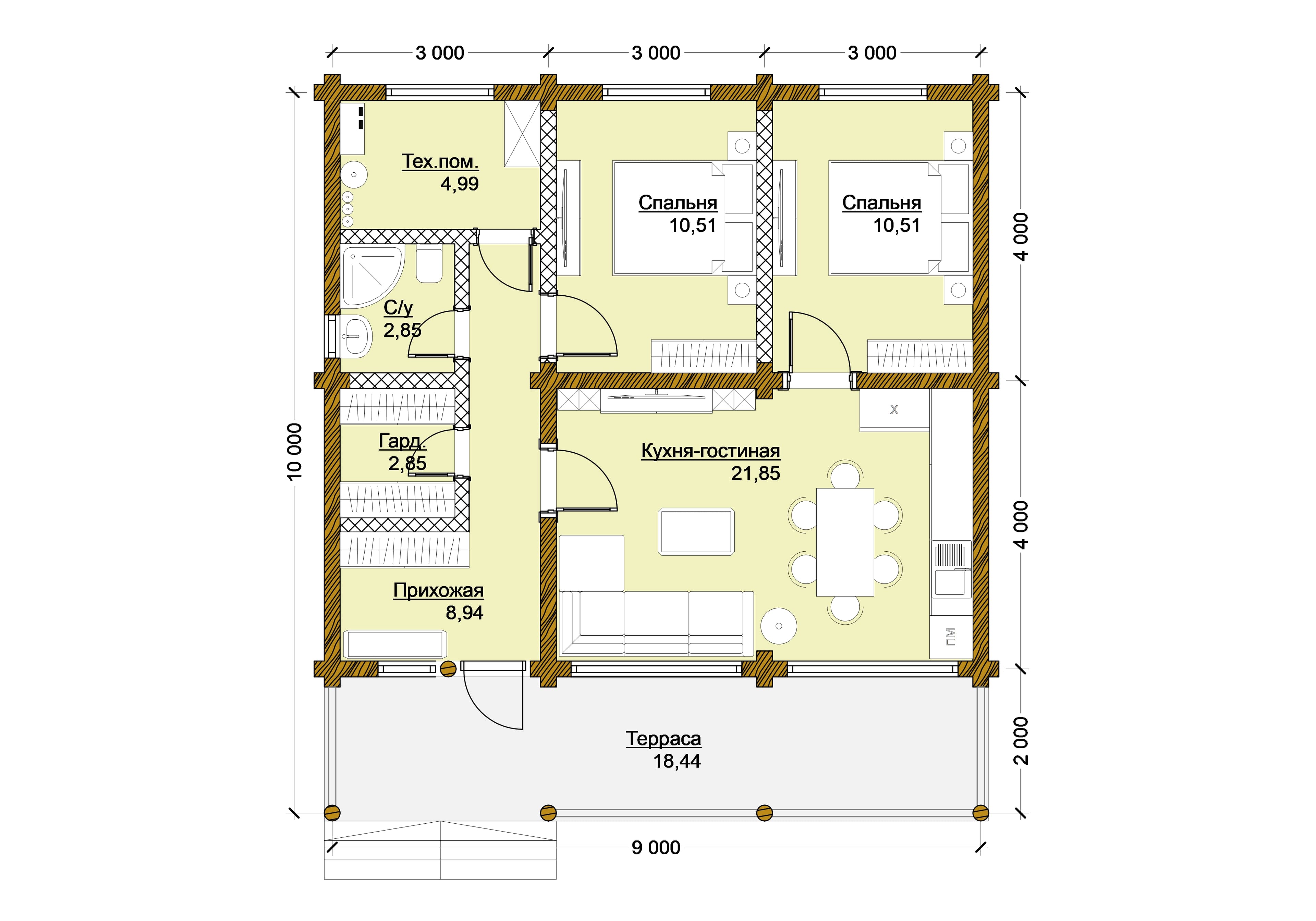
Проект дома «Солнечногорск» | ЭкоТех
Застройщик: Эко-Тех
90.0 м²
1 / 2
🏠
90.0 м²
🛏
2 спален
🚿
1 санузл.
📐
1 этаж
🧱
Оцилиндрованное бревно
Похожие проекты
Похожие по цене
Похожие по площади
Барн 3
3 спальн. · 1 санузл. · 1 этаж
от 2 460 000 ₽
→
«Ситцевый»
2 этаж
от 2 462 276 ₽
→
Каркасный дом 10,5×7,5 проект «Гиацинт» Проект "Гиацинт"
4 спальн. · 1 санузл. · 2 этаж
от 2 456 000 ₽
→
Проект DOMFIX 1 - одноэтажный каменный дом
2 спальн. · 1 этаж
от 4 950 000 ₽
→
Проект одноэтажного каркасного дома "Сириус"
3 спальн. · 2 этаж
от 6 446 499 ₽
→
Каркасная баня «КБ-61
от 4 935 000 ₽
→
На сайт застройщика