Перейти к контенту
Подбор и сравнение проектов домов от застройщиков Московской области
Подборщик домов
Калькулятор сметы
Калькулятор площади
Форум
Блог
Главная
›
Каталог проектов
›
Проект дома «Юрцево» | ЭкоТех
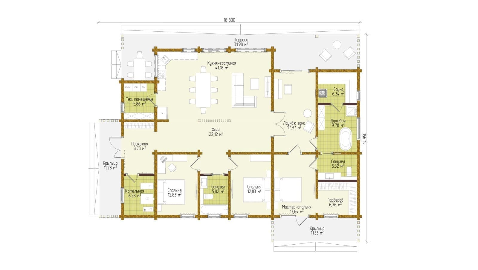
Проект дома «Юрцево» | ЭкоТех
Застройщик: Эко-Тех
239.0 м²
1 / 2
🏠
239.0 м²
🛏
3 спален
🚿
2 санузл.
📐
1 этаж
🧱
Клееный брус
Похожие проекты
Похожие по цене
Похожие по площади
Проект U-193-1K
2 этаж
от 15 881 760 ₽
→
Проект дома из газоблоков 23х12 ГББ-333: цена 12895000 руб.
5 спальн. · 5 санузл. · 2 этаж
от 15 885 000 ₽
→
Дом по проекту «ЗС 607-20» - Золотое Сечение
2 спальн. · 2 санузл.
от 15 875 000 ₽
→
ТК-4
5 спальн. · 3 санузл. · 2 этаж
от 10 990 000 ₽
→
Проект дома N-239-1P
2 этаж
от 16 730 000 ₽
→
Проект одноэтажного коттеджа "Инсайдер" из газобетона
4 спальн. · 2 этаж
от 10 070 000 ₽
→
На сайт застройщика