Перейти к контенту
Подбор и сравнение проектов домов от застройщиков Московской области
Подборщик домов
Калькулятор сметы
Калькулятор площади
Форум
Блог
Главная
›
Каталог проектов
›
Проект дома A-318-2P
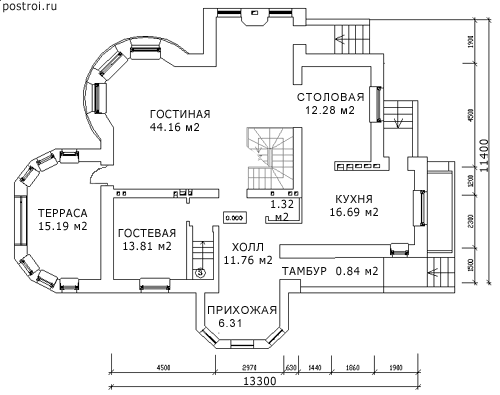
Проект дома A-318-2P
Застройщик: Юникс-Строй
361.0 м²
1 / 4
🏠
361.0 м²
📐
3 этаж
🧱
Пеноблок
Похожие проекты
Похожие по цене
Похожие по площади
Проект дома A-318-1P
3 этаж
от 25 270 000 ₽
→
Проект Y-168-1D
2 этаж
от 25 275 000 ₽
→
Проект N-308-1K
3 этаж
от 25 280 600 ₽
→
Проект R-361-1K
3 этаж
от 29 602 000 ₽
→
Проект дома A-318-1P
3 этаж
от 25 270 000 ₽
→
Проект одноэтажного коттеджа "Тефия КД" из газобетона
4 спальн. · 2 этаж
от 15 599 000 ₽
→
На сайт застройщика