Перейти к контенту
Подбор и сравнение проектов домов от застройщиков Московской области
Подборщик домов
Калькулятор сметы
Калькулятор площади
Форум
Блог
Главная
›
Каталог проектов
›
Проект дома A-335-1P
Проект дома A-335-1P
Застройщик: Юникс-Строй
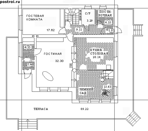
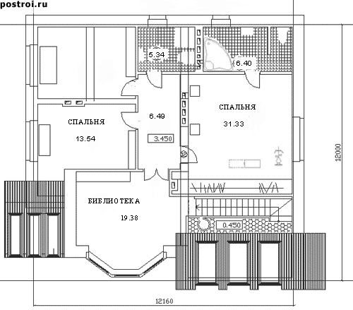
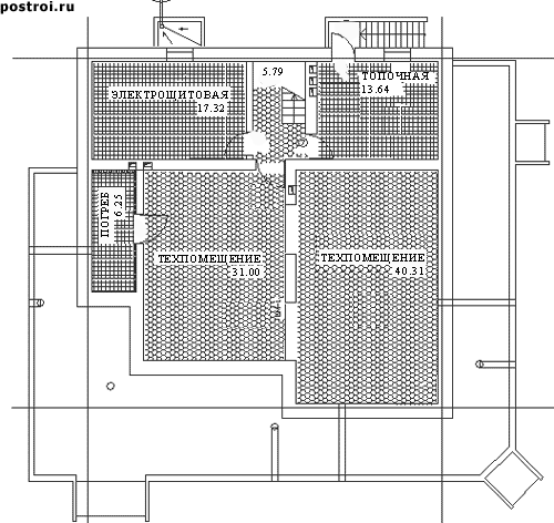
335.0 м²
1 / 4
🏠
335.0 м²
📐
3 этаж
🧱
Пеноблок
Похожие проекты
Похожие по цене
Похожие по площади
Проект M-286-1K
2 этаж
от 23 452 000 ₽
→
Проект U-286-1K
2 этаж
от 23 424 120 ₽
→
Большой современный дом «Элленберг»
5 спальн. · 3 санузл. · 2 этаж
от 23 424 000 ₽
→
Проект К-186 19 на 9, площадью 335 за 11 225 250 руб
3 спальн. · 2 этаж
от 11 225 250 ₽
→
Проект К-186 19 на 9, площадью 335 за 11 225 250 руб
3 спальн. · 2 этаж
от 9 380 000 ₽
→
Проект G-335-1K
3 этаж
от 27 470 000 ₽
→
На сайт застройщика