Перейти к контенту
Подбор и сравнение проектов домов от застройщиков Московской области
Подборщик домов
Калькулятор сметы
Калькулятор площади
Форум
Блог
Главная
›
Каталог проектов
›
Проект дома E-167-1P
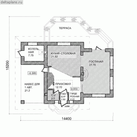
Проект дома E-167-1P
Застройщик: Юникс-Строй
167.5 м²
1 / 3
🏠
167.5 м²
📐
2 этаж
🧱
Пеноблок
Похожие проекты
Похожие по цене
Похожие по площади
Дом из клееного бруса «Альпийск» | ЭкоТех
3 спальн. · 2 санузл. · 1 этаж
от 11 729 000 ₽
→
Дом из газобетонных блоков С-268 ГБ «Стриж»
4 спальн. · 3 санузл. · 4 этаж
от 11 716 000 ₽
→
Дом из керамических блоков С-268 КЕ «Стриж»
4 спальн. · 3 санузл. · 4 этаж
от 11 716 000 ₽
→
Проект G-181-1D
2 этаж
от 25 125 000 ₽
→
Проект одноэтажного коттеджа "Нефрит" из газобетона
4 спальн. · 2 этаж
от 9 553 000 ₽
→
Проект одноэтажного дома "Соловьиная роща" из бруса
4 спальн. · 2 этаж
от 12 201 831 ₽
→
На сайт застройщика