Перейти к контенту
Подбор и сравнение проектов домов от застройщиков Московской области
Подборщик домов
Калькулятор сметы
Калькулятор площади
Форум
Блог
Главная
›
Каталог проектов
›
Проект дома E-171-1P
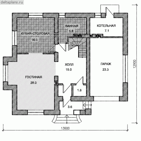
Проект дома E-171-1P
Застройщик: Юникс-Строй
171.9 м²
1 / 3
🏠
171.9 м²
📐
2 этаж
🧱
Пеноблок
Похожие проекты
Похожие по цене
Похожие по площади
Проект дома E-171-2P
2 этаж
от 12 033 000 ₽
→
Проект дома U-171-1P
2 этаж
от 12 035 100 ₽
→
Проект двухэтажного дома "Уголок-М8" из бруса
3 спальн. · 2 этаж
от 12 035 253 ₽
→
Проект E-172-1K
2 этаж
от 14 095 800 ₽
→
Проект F-172-1K
3 этаж
от 14 095 800 ₽
→
Проект дома E-171-2P
2 этаж
от 12 033 000 ₽
→
На сайт застройщика