Перейти к контенту
Подбор и сравнение проектов домов от застройщиков Московской области
Подборщик домов
Калькулятор сметы
Калькулятор площади
Форум
Блог
Главная
›
Каталог проектов
›
Проект дома F-199-1P
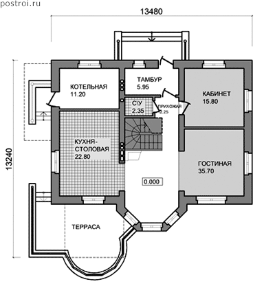
Проект дома F-199-1P
Застройщик: Юникс-Строй
199.3 м²
1 / 3
🏠
199.3 м²
📐
2 этаж
🧱
Пеноблок
Похожие проекты
Похожие по цене
Похожие по площади
Проект A-199-1P
2 этаж
от 13 951 000 ₽
→
Проект дома из керамоблоков 19х15 ТКБ-217: цена 10142000 руб.
4 спальн. · 3 санузл. · 1 этаж
от 13 950 000 ₽
→
Проект A-093-1D
2 этаж
от 13 950 000 ₽
→
Проект A-199-1P
2 этаж
от 13 951 000 ₽
→
Проект M-199-1P
2 этаж
от 13 948 200 ₽
→
Проект одноэтажного дома "Святибор" из бруса
5 спальн. · 2 этаж
от 14 530 665 ₽
→
На сайт застройщика