Перейти к контенту
Подбор и сравнение проектов домов от застройщиков Московской области
Подборщик домов
Калькулятор сметы
Калькулятор площади
Форум
Блог
Главная
›
Каталог проектов
›
Проект дома F-235-1P
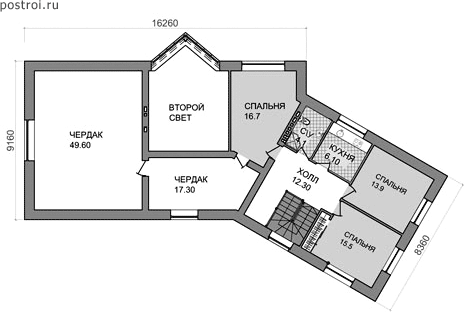
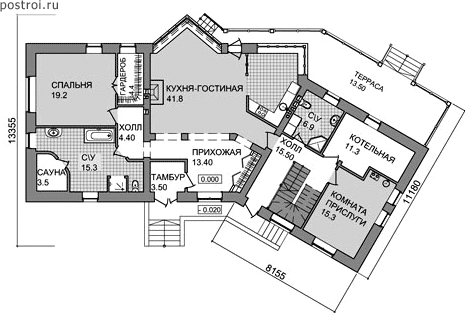
Проект дома F-235-1P
Застройщик: Юникс-Строй
235.0 м²
1 / 3
🏠
235.0 м²
📐
2 этаж
🧱
Пеноблок
Похожие проекты
Похожие по цене
Похожие по площади
Проект дома D-253-1P
2 этаж
от 16 450 000 ₽
→
Проект дома C-264-1P
3 этаж
от 16 450 700 ₽
→
Проект R-201-1K
2 этаж
от 16 449 200 ₽
→
Проект одноэтажного коттеджа "Душистая Сирень" из газобетона
4 спальн. · 2 этаж
от 10 146 000 ₽
→
Дом 5 спален с гаражом №361
2 этаж
от 9 694 000 ₽
→
Проект 5 спален с гаражом №361
2 этаж
от 9 694 000 ₽
→
На сайт застройщика