Перейти к контенту
Подбор и сравнение проектов домов от застройщиков Московской области
Подборщик домов
Калькулятор сметы
Калькулятор площади
Форум
Блог
Главная
›
Каталог проектов
›
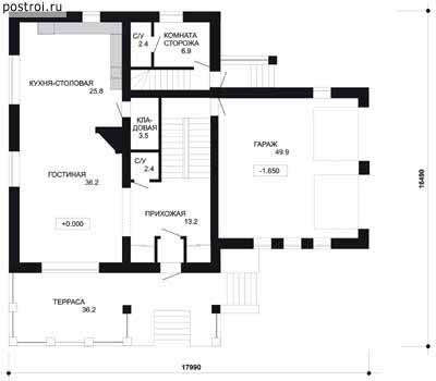
Проект дома H-419-1P
Проект дома H-419-1P
Застройщик: Юникс-Строй
418.9 м²
1 / 4
🏠
418.9 м²
📐
3 этаж
🧱
Пеноблок
Похожие проекты
Похожие по цене
Похожие по площади
Проект M-314-1K
3 этаж
от 29 321 560 ₽
→
Проект U-358-1K
2 этаж
от 29 329 760 ₽
→
Проект A-358-1K
2 санузл. · 2 этаж
от 29 331 400 ₽
→
Проект «Greenville»
3 спальн. · 2 санузл. · 2 этаж
от 20 950 000 ₽
→
Проект «Greenville»
3 спальн. · 2 санузл. · 2 этаж
от 20 950 000 ₽
→
Двухэтажный дом «Гринвилл» со вторым светом
3 спальн. · 2 санузл. · 2 этаж
от 25 140 000 ₽
→
На сайт застройщика