Перейти к контенту
Подбор и сравнение проектов домов от застройщиков Московской области
Подборщик домов
Калькулятор сметы
Калькулятор площади
Форум
Блог
Главная
›
Каталог проектов
›
Проект дома I-209-1P
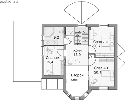
Проект дома I-209-1P
Застройщик: Юникс-Строй
208.5 м²
1 / 3
🏠
208.5 м²
📐
2 этаж
🧱
Пеноблок
Похожие проекты
Похожие по цене
Похожие по площади
Проект U-208-1P
2 этаж
от 14 592 200 ₽
→
Дом Ильинское из газобетона: заказать в Москве по низкой цене
3 спальн. · 3 санузл. · 2 этаж
от 14 600 000 ₽
→
Дом Ильинское из кирпича: заказать в Москве по низкой цене
3 спальн. · 3 санузл. · 2 этаж
от 14 600 000 ₽
→
Проект L-209-1K
2 этаж
от 17 097 000 ₽
→
Проект U-208-1P
2 этаж
от 14 592 200 ₽
→
Проект N-209-1P
3 этаж
от 14 602 000 ₽
→
На сайт застройщика