Перейти к контенту
Подбор и сравнение проектов домов от застройщиков Московской области
Подборщик домов
Калькулятор сметы
Калькулятор площади
Форум
Блог
Главная
›
Каталог проектов
›
Проект дома M-209-1P
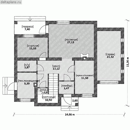
Проект дома M-209-1P
Застройщик: Юникс-Строй
209.39 м²
1 / 3
🏠
209.39 м²
📐
2 этаж
🧱
Пеноблок
Похожие проекты
Похожие по цене
Похожие по площади
Проект дома из керамоблоков 19х14 ТКБ-192: цена 10765000 руб.
4 спальн. · 3 санузл. · 1 этаж
от 14 649 000 ₽
→
Проект одноэтажного дома "Галлант" из бруса
6 спальн. · 2 этаж
от 14 672 663 ₽
→
Проект дома из газоблоков 21х14 ГББ-187: цена 11767000 руб.
4 спальн. · 2 санузл. · 1 этаж
от 14 673 000 ₽
→
Проект дома «Кайнд»
4 спальн. · 1 этаж
от 17 614 000 ₽
→
Проект дома «Пардо»
4 спальн. · 1 этаж
от 17 614 000 ₽
→
Проект U-209-1K
2 этаж
от 17 165 060 ₽
→
На сайт застройщика