Перейти к контенту
Подбор и сравнение проектов домов от застройщиков Московской области
Подборщик домов
Калькулятор сметы
Калькулятор площади
Форум
Блог
Главная
›
Каталог проектов
›
Проект дома M-559-1P
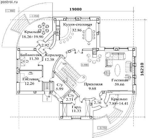
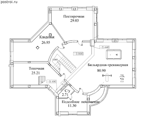
Проект дома M-559-1P
Застройщик: Юникс-Строй
607.0 м²
1 / 4
🏠
607.0 м²
📐
3 этаж
🧱
Пеноблок
Похожие проекты
Похожие по цене
Похожие по площади
Проект дома «Trevose»
3 спальн. · 7 санузл. · 1 этаж
от 42 500 000 ₽
→
Проект J-519-1K
2 этаж
от 42 615 400 ₽
→
Проект J-520-1K
3 этаж
от 42 664 600 ₽
→
Современный дом в стиле Барн Хаус «Вилар»
5 спальн. · 4 санузл. · 2 этаж
от 36 384 000 ₽
→
Проект S-608-1K
3 этаж
от 49 872 400 ₽
→
Проект O-485-1K
3 этаж
от 49 659 200 ₽
→
На сайт застройщика