Перейти к контенту
Подбор и сравнение проектов домов от застройщиков Московской области
Подборщик домов
Калькулятор сметы
Калькулятор площади
Форум
Блог
Главная
›
Каталог проектов
›
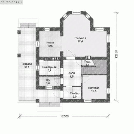
Проект дома U-143-1P
Проект дома U-143-1P
Застройщик: Юникс-Строй
147.25 м²
1 / 3
🏠
147.25 м²
📐
2 этаж
🧱
Пеноблок
Похожие проекты
Похожие по цене
Похожие по площади
Проект T-147-1P
3 этаж
от 10 308 900 ₽
→
Проект дома из газоблоков 15х12 ГББ-131: цена 7303000 руб.
4 спальн. · 2 санузл. · 1 этаж
от 10 306 000 ₽
→
Проект одноэтажного дома "Лукоморье-2" из бруса
4 спальн. · 2 этаж
от 10 305 450 ₽
→
Проект T-147-1P
3 этаж
от 10 308 900 ₽
→
Проект R-145-1P
3 этаж
от 10 301 200 ₽
→
Проект дома «Карлайл»
2 спальн. · 1 этаж
от 9 802 100 ₽
→
На сайт застройщика