Перейти к контенту
Подбор и сравнение проектов домов от застройщиков Московской области
Подборщик домов
Калькулятор сметы
Калькулятор площади
Форум
Блог
Главная
›
Каталог проектов
›
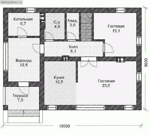
Проект дома U-163-1P
Проект дома U-163-1P
Застройщик: Юникс-Строй
163.26 м²
1 / 3
🏠
163.26 м²
📐
2 этаж
🧱
Пеноблок
Похожие проекты
Похожие по цене
Похожие по площади
Проект одноэтажного каркасного дома "Корсика"
4 спальн. · 2 этаж
от 11 429 963 ₽
→
Проект одноэтажного дома "Кауфман" из бруса
3 спальн. · 2 этаж
от 11 433 317 ₽
→
Проект B-163-1P
3 этаж
от 11 434 500 ₽
→
Проект B-163-1P
3 этаж
от 11 434 500 ₽
→
Проект G-169-1D
2 этаж
от 24 465 000 ₽
→
Аврора 2
4 спальн. · 3 санузл. · 2 этаж
от 4 559 800 ₽
→
На сайт застройщика