Перейти к контенту
Подбор и сравнение проектов домов от застройщиков Московской области
Подборщик домов
Калькулятор сметы
Калькулятор площади
Форум
Блог
Главная
›
Каталог проектов
›
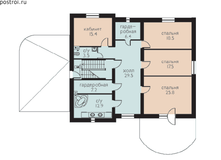
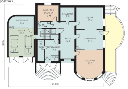
Проект дома U-650-1P
Проект дома U-650-1P
Застройщик: Юникс-Строй
650.0 м²
1 / 4
🏠
650.0 м²
📐
3 этаж
🧱
Пеноблок
Похожие проекты
Похожие по цене
Похожие по площади
Дом по проекту «ЗС 557-21-2» - Золотое Сечение
4 спальн. · 4 санузл.
от 45 500 000 ₽
→
Проект «Nottingham»
7 спальн. · 7 санузл. · 2 этаж
от 45 500 000 ₽
→
Проект «Devine»
4 спальн. · 5 санузл. · 1 этаж
от 45 415 000 ₽
→
Дом Конаково из газобетона: заказать в Москве по низкой цене
3 спальн. · 5 санузл. · 2 этаж
от 23 040 000 ₽
→
Дом Конаково из кирпича: заказать в Москве по низкой цене
3 спальн. · 5 санузл. · 2 этаж
от 23 040 000 ₽
→
Проект E-650-1K
3 этаж
от 53 341 000 ₽
→
На сайт застройщика