Перейти к контенту
Подбор и сравнение проектов домов от застройщиков Московской области
Подборщик домов
Калькулятор сметы
Калькулятор площади
Форум
Блог
Главная
›
Каталог проектов
›
Проект дома V-106-1P
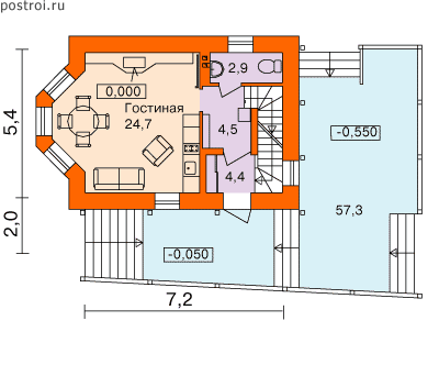
Проект дома V-106-1P
Застройщик: Юникс-Строй
105.7 м²
1 / 4
🏠
105.7 м²
📐
3 этаж
🧱
Пеноблок
Похожие проекты
Похожие по цене
Похожие по площади
Проект двухэтажного каркасного дома Усадьба M под ключ от компании БАКО
4 спальн. · 2 санузл. · 2 этаж
от 7 400 000 ₽
→
Каркасный дом «Левашово
от 7 400 000 ₽
→
Проект каркасного дома КП-126
1 этаж
от 7 400 000 ₽
→
Проект одноэтажного дома "Буран" из бруса
3 спальн. · 2 этаж
от 7 242 667 ₽
→
Проект дома из газоблоков 14х10 ГББ-105: цена 6470000 руб.
2 спальн. · 1 санузл. · 1 этаж
от 7 298 000 ₽
→
Проект дома из керамоблоков 14х10 ТКБ-105: цена 6510000 руб.
2 спальн. · 1 санузл. · 1 этаж
от 7 972 000 ₽
→
На сайт застройщика