Перейти к контенту
Подбор и сравнение проектов домов от застройщиков Московской области
Подборщик домов
Калькулятор сметы
Калькулятор площади
Форум
Блог
Главная
›
Каталог проектов
›
Проект A-086-1P
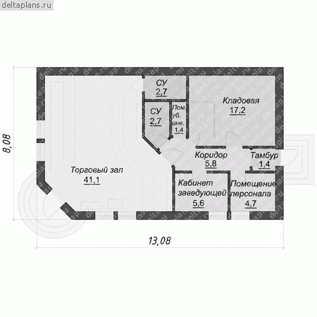
Проект A-086-1P
Застройщик: Юникс-Строй
86.0 м²
1 / 2
🏠
86.0 м²
📐
1 этаж
🧱
Пеноблок
Похожие проекты
Похожие по цене
Похожие по площади
Проект E-086-1P
1 этаж
от 6 020 000 ₽
→
Проект H-086-1P
2 этаж
от 6 020 000 ₽
→
Проект каркасного дома КП-60
2 спальн. · 1 этаж
от 6 015 000 ₽
→
Проект дома из газоблоков 12х10 ГББ-86: цена 5743000 руб.
2 спальн. · 1 санузл. · 1 этаж
от 7 109 000 ₽
→
Проект дома из керамоблоков 12х10 ТКБ-86: цена 5834000 руб.
2 спальн. · 1 санузл. · 1 этаж
от 7 690 000 ₽
→
Дом «Борисов» 6х8 м
3 спальн. · 5 этаж
от 3 240 000 ₽
→
На сайт застройщика