Перейти к контенту
Подбор и сравнение проектов домов от застройщиков Московской области
Подборщик домов
Калькулятор сметы
Калькулятор площади
Форум
Блог
Главная
›
Каталог проектов
›
Проект A-120-1D
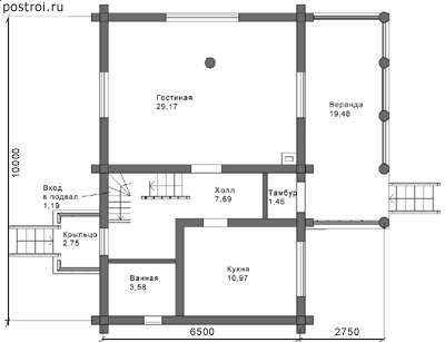
Проект A-120-1D
Застройщик: Юникс-Строй
120.0 м²
1 / 3
🏠
120.0 м²
📐
2 этаж
🧱
Дерево
Похожие проекты
Похожие по цене
Похожие по площади
Дом по проекту «ЗС 239-25» - Золотое Сечение
3 спальн. · 2 санузл.
от 18 000 000 ₽
→
Проект S-220-1K
2 этаж
от 17 999 000 ₽
→
Проект дома из керамоблоков 12х18 ТКБ-265: цена 10254000 руб.
5 спальн. · 3 санузл. · 2 этаж
от 17 998 000 ₽
→
Проект DOMFIX 3 - одноэтажный каменный дом
3 спальн. · 1 этаж
от 6 600 000 ₽
→
Проект одноэтажного дома "Пыжик" из бруса
4 спальн. · 2 этаж
от 10 636 283 ₽
→
Проект одноэтажного дома "Уникум" из бруса
3 спальн. · 2 этаж
от 8 818 439 ₽
→
На сайт застройщика