Перейти к контенту
Подбор и сравнение проектов домов от застройщиков Московской области
Подборщик домов
Калькулятор сметы
Калькулятор площади
Форум
Блог
Главная
›
Каталог проектов
›
Проект A-263-1K
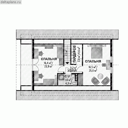
Проект A-263-1K
Застройщик: Юникс-Строй
150.22 м²
1 / 3
🏠
150.22 м²
📐
2 этаж
🧱
Кирпич
Похожие проекты
Похожие по цене
Похожие по площади
Проект дома «Пирс»
3 спальн. · 1 этаж
от 12 319 000 ₽
→
Проект A-150-1K
2 этаж
от 12 319 680 ₽
→
Проект дома «Градский»
4 спальн. · 1 этаж
от 12 322 000 ₽
→
Проект одноэтажного дома "Калинка" из бруса
4 спальн. · 2 этаж
от 12 496 565 ₽
→
Проект A-150-1K
2 этаж
от 12 319 680 ₽
→
Проект одноэтажного коттеджа "Фьорд" из газобетона
2 спальн. · 2 этаж
от 8 753 000 ₽
→
На сайт застройщика