Перейти к контенту
Подбор и сравнение проектов домов от застройщиков Московской области
Подборщик домов
Калькулятор сметы
Калькулятор площади
Форум
Блог
Главная
›
Каталог проектов
›
Проект A-323-1K
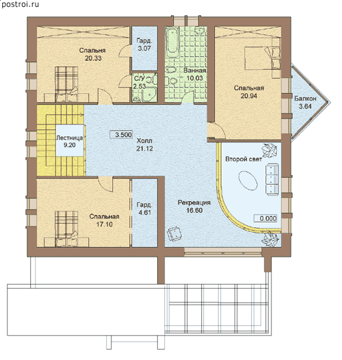
Проект A-323-1K
Застройщик: Юникс-Строй
363.73 м²
1 / 4
🏠
363.73 м²
📐
3 этаж
🧱
Кирпич
Похожие проекты
Похожие по цене
Похожие по площади
Проект D-198-1D
2 этаж
от 29 775 000 ₽
→
Проект M-362-1K
2 этаж
от 29 760 260 ₽
→
Дом по проекту «ЗС 44-17» - Золотое Сечение
4 спальн. · 2 санузл.
от 29 750 000 ₽
→
Дом по проекту «ЗС 557-21-2» - Золотое Сечение
4 спальн. · 4 санузл.
от 45 500 000 ₽
→
Проект U-364-1P
3 этаж
от 25 480 000 ₽
→
Проект «Holmgard»
от 18 150 000 ₽
→
На сайт застройщика