Перейти к контенту
Подбор и сравнение проектов домов от застройщиков Московской области
Подборщик домов
Калькулятор сметы
Калькулятор площади
Форум
Блог
Главная
›
Каталог проектов
›
Проект B-169-1P
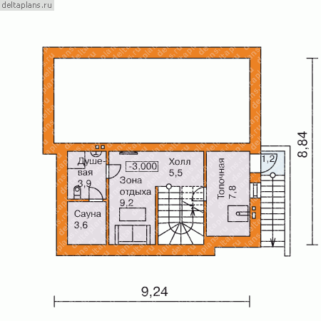
Проект B-169-1P
Застройщик: Юникс-Строй
174.34 м²
1 / 4
🏠
174.34 м²
📐
3 этаж
🧱
Пеноблок
Похожие проекты
Похожие по цене
Похожие по площади
Проект двухэтажного дома "Ветерок" из бруса
6 спальн. · 2 этаж
от 12 205 352 ₽
→
Проект одноэтажного дома "Соловьиная роща" из бруса
4 спальн. · 2 этаж
от 12 201 831 ₽
→
Проект B-175-1P
2 этаж
от 12 205 900 ₽
→
Проект B-175-1P
2 этаж
от 12 205 900 ₽
→
Проект U-174-1K
2 этаж
от 14 293 420 ₽
→
Дома из керамических блоков Вилла 2 S под ключ
4 спальн. · 2 санузл. · 2 этаж
от 10 589 700 ₽
→
На сайт застройщика