Перейти к контенту
Подбор и сравнение проектов домов от застройщиков Московской области
Подборщик домов
Калькулятор сметы
Калькулятор площади
Форум
Блог
Главная
›
Каталог проектов
›
Проект C-092-1D
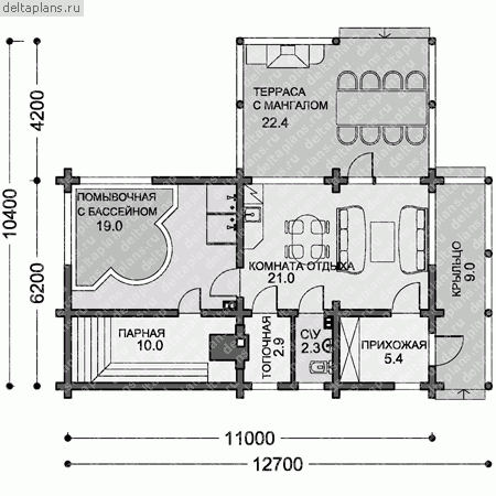
Проект C-092-1D
Застройщик: Юникс-Строй
92.0 м²
1 / 2
🏠
92.0 м²
🚿
1 санузл.
📐
1 этаж
🧱
Дерево
Похожие проекты
Похожие по цене
Похожие по площади
Проект каркасного дома КП-188
1 этаж
от 13 800 000 ₽
→
Проект C-197-1P
2 этаж
от 13 797 000 ₽
→
Проект дома «Байкал» | ЭкоТех
3 спальн. · 2 санузл. · 2 этаж
от 13 795 000 ₽
→
Каркасный дом 9x7 Проект "Авгит"
1 санузл. · 2 этаж
от 2 468 000 ₽
→
Дом «Морозов» 8х9 м
4 спальн. · 5 этаж
от 3 950 000 ₽
→
Дом «Павлов» 7х9 м
3 спальн. · 2 этаж
от 3 100 000 ₽
→
На сайт застройщика