Перейти к контенту
Подбор и сравнение проектов домов от застройщиков Московской области
Подборщик домов
Калькулятор сметы
Калькулятор площади
Форум
Блог
Главная
›
Каталог проектов
›
Проект C-096-1P
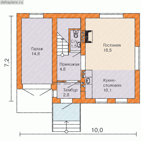
Проект C-096-1P
Застройщик: Юникс-Строй
95.2 м²
1 / 3
🏠
95.2 м²
📐
2 этаж
🧱
Пеноблок
Похожие проекты
Похожие по цене
Похожие по площади
Проект К-111 10 на 13, площадью 238 за 8 083 500 руб
6 спальн. · 2 этаж
от 6 664 000 ₽
→
Проект К-228 9 на 14, площадью 238 за 8 032 500 руб
5 спальн. · 2 этаж
от 6 664 000 ₽
→
Проект К-34 11 на 11, площадью 238 за 7 968 750 руб
4 спальн. · 2 этаж
от 6 664 000 ₽
→
Проект каркасного дома КП-107
1 этаж
от 7 855 000 ₽
→
Проект дома AS-1081
2 этаж
от 3 893 680 ₽
→
Проект дома «Переделкино» | ЭкоТех
3 спальн. · 2 санузл. · 2 этаж
от 2 881 000 ₽
→
На сайт застройщика