Перейти к контенту
Подбор и сравнение проектов домов от застройщиков Московской области
Подборщик домов
Калькулятор сметы
Калькулятор площади
Форум
Блог
Главная
›
Каталог проектов
›
Проект C-100-5P
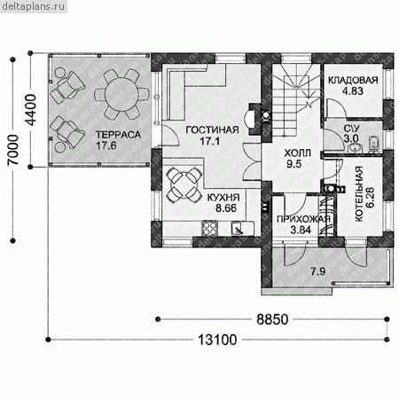
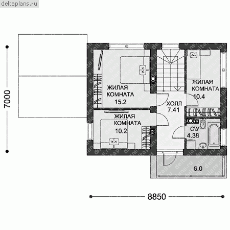
Проект C-100-5P
Застройщик: Юникс-Строй
100.8 м²
1 / 3
🏠
100.8 м²
📐
2 этаж
🧱
Пеноблок
Похожие проекты
Похожие по цене
Похожие по площади
Проект К-143 13 на 10, площадью 252 за 8 461 500 руб
4 спальн. · 2 этаж
от 7 056 000 ₽
→
Проект C-100-1P
2 этаж
от 7 056 000 ₽
→
Проект C-100-4P
2 этаж
от 7 056 000 ₽
→
ГББ-100
3 спальн. · 1 санузл. · 1 этаж
от 7 004 000 ₽
→
Проект дома из керамоблоков 12х11 ТКБ-100: цена 1000 руб.
3 спальн. · 1 санузл. · 1 этаж
от 7 650 000 ₽
→
Проект C-100-1P
2 этаж
от 7 056 000 ₽
→
На сайт застройщика