Перейти к контенту
Подбор и сравнение проектов домов от застройщиков Московской области
Подборщик домов
Калькулятор сметы
Калькулятор площади
Форум
Блог
Главная
›
Каталог проектов
›
Проект C-157-3P
Проект C-157-3P
Застройщик: Юникс-Строй
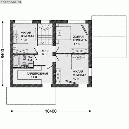
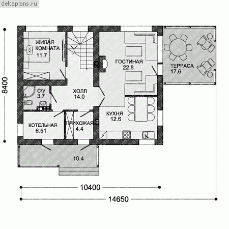
156.91 м²
1 / 3
🏠
156.91 м²
📐
2 этаж
🧱
Пеноблок
Похожие проекты
Похожие по цене
Похожие по площади
Проект C-157-1P
2 этаж
от 10 983 700 ₽
→
Дом 4 спальни с навесом №362
2 этаж
от 10 984 250 ₽
→
Проект 4 спальни с навесом №362
2 этаж
от 10 984 250 ₽
→
Проект C-157-1P
2 этаж
от 10 983 700 ₽
→
Проект F-157-1K
2 этаж
от 12 865 800 ₽
→
Ривьера 1
6 спальн. · 3 санузл. · 2 этаж
от 6 685 000 ₽
→
На сайт застройщика