Перейти к контенту
Подбор и сравнение проектов домов от застройщиков Московской области
Подборщик домов
Калькулятор сметы
Калькулятор площади
Форум
Блог
Главная
›
Каталог проектов
›
Проект C-200-1P
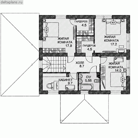
Проект C-200-1P
Застройщик: Юникс-Строй
200.0 м²
1 / 3
🏠
200.0 м²
📐
2 этаж
🧱
Пеноблок
Похожие проекты
Похожие по цене
Похожие по площади
Каркасный дом «Барвиха
от 14 000 000 ₽
→
Дом по проекту «ЗС 224-24» - Золотое Сечение
2 спальн. · 1 санузл.
от 14 000 000 ₽
→
Дом по проекту «ЗС 454-19-3» - Золотое Сечение
3 спальн. · 2 санузл.
от 14 000 000 ₽
→
СК-3
5 спальн. · 3 санузл. · 1 этаж
от 12 450 000 ₽
→
Проект двухэтажного коттеджа "Гжельское" из газобетона
3 спальн. · 2 этаж
от 9 917 000 ₽
→
Дом из газобетона Проект ГБ-195
3 спальн. · 2 санузл.
от 6 969 000 ₽
→
На сайт застройщика