Перейти к контенту
Подбор и сравнение проектов домов от застройщиков Московской области
Подборщик домов
Калькулятор сметы
Калькулятор площади
Форум
Блог
Главная
›
Каталог проектов
›
Проект C-204-1S
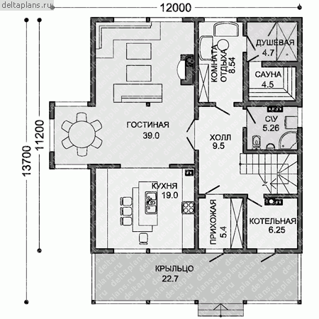
Проект C-204-1S
Застройщик: Юникс-Строй
204.38 м²
1 / 3
🏠
204.38 м²
📐
2 этаж
🧱
Каркас
Похожие проекты
Похожие по цене
Похожие по площади
Строительство каркасного дома 11х8 "Кейт" под ключ
3 спальн. · 1 санузл. · 1 этаж
от 4 026 000 ₽
→
Строительство каркасного дома 10,4х8,6 "Амир" под ключ
3 спальн. · 1 санузл. · 1 этаж
от 4 025 000 ₽
→
Проект N-058-1P
1 этаж
от 4 032 000 ₽
→
Проект L-204-1P
2 этаж
от 14 308 000 ₽
→
Проект L-204-1K
2 этаж
от 16 765 720 ₽
→
Проект N-204-1K
2 этаж
от 16 766 540 ₽
→
На сайт застройщика