Перейти к контенту
Подбор и сравнение проектов домов от застройщиков Московской области
Подборщик домов
Калькулятор сметы
Калькулятор площади
Форум
Блог
Главная
›
Каталог проектов
›
Проект C-401-1K
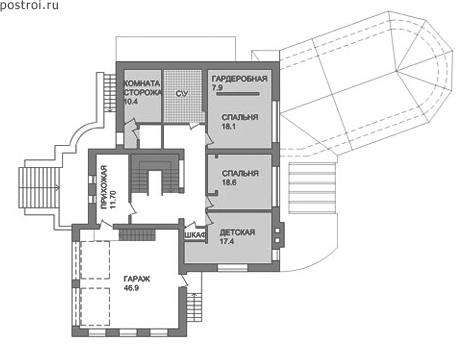
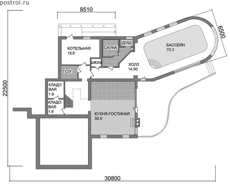
Проект C-401-1K
Застройщик: Юникс-Строй
401.4 м²
1 / 3
🏠
401.4 м²
📐
2 этаж
🧱
Кирпич
Похожие проекты
Похожие по цене
Похожие по площади
Проект J-401-1K
2 этаж
от 32 882 000 ₽
→
Проект одноэтажного коттеджа "Черкизово" из газобетона
3 спальн. · 3 этаж
от 32 838 000 ₽
→
Проект E-400-1K
3 этаж
от 32 800 000 ₽
→
Проект J-401-1K
2 этаж
от 32 882 000 ₽
→
Дом из газобетонных блоков С-402 ГБ «Блеск»
5 спальн. · 2 санузл. · 2 этаж
от 17 193 000 ₽
→
Дом из керамических блоков С-402 КЕ «Блеск»
5 спальн. · 2 санузл. · 2 этаж
от 17 193 000 ₽
→
На сайт застройщика