Перейти к контенту
Подбор и сравнение проектов домов от застройщиков Московской области
Подборщик домов
Калькулятор сметы
Калькулятор площади
Форум
Блог
Главная
›
Каталог проектов
›
Проект C-425-1K
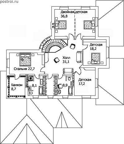
Проект C-425-1K
Застройщик: Юникс-Строй
423.0 м²
1 / 3
🏠
423.0 м²
📐
2 этаж
🧱
Кирпич
Похожие проекты
Похожие по цене
Похожие по площади
Проект G-231-1D
2 этаж
от 34 710 000 ₽
→
Проект B-423-1K
3 этаж
от 34 718 800 ₽
→
Проект «Darvel»
5 спальн. · 6 санузл.
от 34 750 000 ₽
→
Проект «Veneto»
от 21 150 000 ₽
→
Проект «Veneto»
от 21 150 000 ₽
→
Проект B-423-1K
3 этаж
от 34 718 800 ₽
→
На сайт застройщика