Перейти к контенту
Подбор и сравнение проектов домов от застройщиков Московской области
Подборщик домов
Калькулятор сметы
Калькулятор площади
Форум
Блог
Главная
›
Каталог проектов
›
Проект D-126-2D
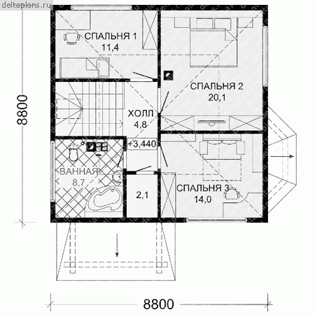
Проект D-126-2D
Застройщик: Юникс-Строй
126.9 м²
1 / 3
🏠
126.9 м²
🚿
2 санузл.
📐
2 этаж
🧱
Дерево
Похожие проекты
Похожие по цене
Похожие по площади
Проект N-127-1D
2 этаж
от 19 035 000 ₽
→
Проект G-232-1K
2 этаж
от 19 048 600 ₽
→
Проект D-127-1D
2 этаж
от 19 050 000 ₽
→
Проект N-127-1D
2 этаж
от 19 035 000 ₽
→
Проект P-127-1P
2 этаж
от 8 883 000 ₽
→
Проект U-126-1P
2 этаж
от 8 881 600 ₽
→
На сайт застройщика