Перейти к контенту
Подбор и сравнение проектов домов от застройщиков Московской области
Подборщик домов
Калькулятор сметы
Калькулятор площади
Форум
Блог
Главная
›
Каталог проектов
›
Проект D-150-1D
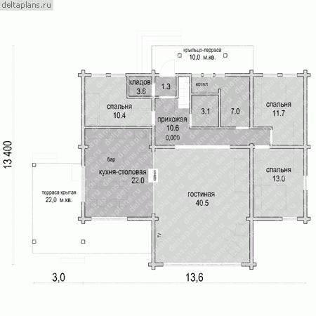
Проект D-150-1D
Застройщик: Юникс-Строй
150.0 м²
1 / 3
🏠
150.0 м²
🚿
2 санузл.
📐
2 этаж
🧱
Дерево
Похожие проекты
Похожие по цене
Похожие по площади
Дом по проекту «ЗС 240-25» - Золотое Сечение
5 спальн. · 2 санузл.
от 22 500 000 ₽
→
Проект F-150-1D
1 этаж
от 22 500 000 ₽
→
Проект U-274-1K
2 этаж
от 22 504 080 ₽
→
Проект одноэтажного дома "Опалево-М3" из бруса
5 спальн. · 2 этаж
от 10 522 580 ₽
→
Проект одноэтажного дома "Радуга" из бруса
3 спальн. · 2 этаж
от 10 726 805 ₽
→
Проект одноэтажного дома "Шале" из бруса
2 этаж
от 9 639 261 ₽
→
На сайт застройщика