Перейти к контенту
Подбор и сравнение проектов домов от застройщиков Московской области
Подборщик домов
Калькулятор сметы
Калькулятор площади
Форум
Блог
Главная
›
Каталог проектов
›
Проект D-165-4P
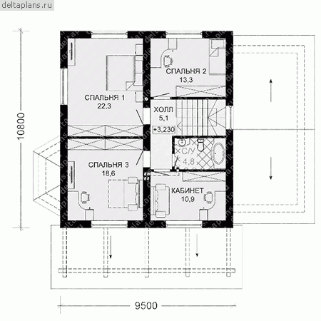
Проект D-165-4P
Застройщик: Юникс-Строй
193.6 м²
1 / 3
🏠
193.6 м²
📐
2 этаж
🧱
Пеноблок
Похожие проекты
Похожие по цене
Похожие по площади
Проект дома W-189-1P
2 этаж
от 13 552 000 ₽
→
Кирпичный дом С-281 К «Скарлетт»
4 спальн. · 3 санузл. · 4 этаж
от 13 549 000 ₽
→
Проект N-193-1P
2 этаж
от 13 559 000 ₽
→
Проект дома W-189-1P
2 этаж
от 13 552 000 ₽
→
Проект U-193-1K
2 этаж
от 15 881 760 ₽
→
Проект N-193-1P
2 этаж
от 13 559 000 ₽
→
На сайт застройщика