Перейти к контенту
Подбор и сравнение проектов домов от застройщиков Московской области
Подборщик домов
Калькулятор сметы
Калькулятор площади
Форум
Блог
Главная
›
Каталог проектов
›
Проект D-213-1D
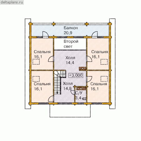
Проект D-213-1D
Застройщик: Юникс-Строй
212.5 м²
1 / 3
🏠
212.5 м²
📐
2 этаж
🧱
Дерево
Похожие проекты
Похожие по цене
Похожие по площади
Проект E-388-1K
3 этаж
от 31 881 600 ₽
→
Проект M-388-1K
2 этаж
от 31 838 960 ₽
→
Проект M-387-1K
3 этаж
от 31 807 800 ₽
→
Проект дома из газоблоков 16х18 ГББ-213: цена 11583000 руб.
4 спальн. · 3 санузл. · 1 этаж
от 15 037 000 ₽
→
Проект дома из керамоблоков 16х18 ТКБ-213: цена 11878000 руб.
4 спальн. · 3 санузл. · 1 этаж
от 16 169 000 ₽
→
Проект каркасного дома с мансардой Шале XL под ключ от компании БАКО
4 спальн. · 2 санузл. · 2 этаж
от 8 726 300 ₽
→
На сайт застройщика