Перейти к контенту
Подбор и сравнение проектов домов от застройщиков Московской области
Подборщик домов
Калькулятор сметы
Калькулятор площади
Форум
Блог
Главная
›
Каталог проектов
›
Проект D-244-1K
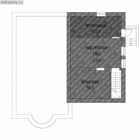
Проект D-244-1K
Застройщик: Юникс-Строй
244.6 м²
1 / 4
🏠
244.6 м²
📐
3 этаж
🧱
Кирпич
Похожие проекты
Похожие по цене
Похожие по площади
Проект T-245-1K
1 этаж
от 20 049 000 ₽
→
Проект дома из керамоблоков 20х16 ТКБ-344: цена 11823000 руб.
4 спальн. · 2 санузл. · 2 этаж
от 20 088 000 ₽
→
Дом по проекту «ЗС 79-14» - Золотое Сечение
4 спальн. · 2 санузл.
от 20 000 000 ₽
→
Проект дома D-244-1P
3 этаж
от 17 122 000 ₽
→
Проект дома D-245-1P
3 этаж
от 17 122 000 ₽
→
Проект G-244-1D
3 этаж
от 36 675 000 ₽
→
На сайт застройщика