Перейти к контенту
Подбор и сравнение проектов домов от застройщиков Московской области
Подборщик домов
Калькулятор сметы
Калькулятор площади
Форум
Блог
Главная
›
Каталог проектов
›
Проект D-266-1P
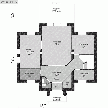
Проект D-266-1P
Застройщик: Юникс-Строй
266.7 м²
1 / 4
🏠
266.7 м²
📐
3 этаж
🧱
Пеноблок
Похожие проекты
Похожие по цене
Похожие по площади
Проект A-266-1P
2 этаж
от 18 683 000 ₽
→
Проект дома M-266-1P
2 этаж
от 18 685 100 ₽
→
Проект U-294-1P
3 этаж
от 18 688 600 ₽
→
Проект U-266-1K
2 этаж
от 21 861 200 ₽
→
Проект A-266-1P
2 этаж
от 18 683 000 ₽
→
Проект дома M-266-1P
2 этаж
от 18 685 100 ₽
→
На сайт застройщика