Перейти к контенту
Подбор и сравнение проектов домов от застройщиков Московской области
Подборщик домов
Калькулятор сметы
Калькулятор площади
Форум
Блог
Главная
›
Каталог проектов
›
Проект E-095-1P
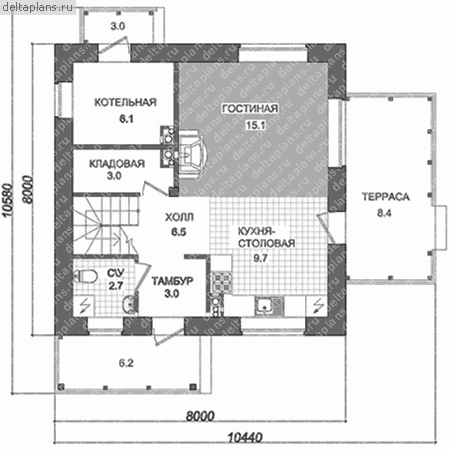
Проект E-095-1P
Застройщик: Юникс-Строй
94.9 м²
1 / 3
🏠
94.9 м²
📐
2 этаж
🧱
Пеноблок
Похожие проекты
Похожие по цене
Похожие по площади
Проект D-095-1P
1 этаж
от 6 643 000 ₽
→
Авангард
2 спальн. · 2 санузл. · 1 этаж
от 6 642 000 ₽
→
проект каменного дома Удача - 124 м²
4 спальн. · 2 санузл. · 2 этаж
от 6 645 000 ₽
→
Проект D-095-1P
1 этаж
от 6 643 000 ₽
→
Проект одноэтажного каркасного дома "Вольф"
3 спальн. · 2 этаж
от 6 903 697 ₽
→
Строительство каркасного дома 9х6 "Ларион" под ключ
4 спальн. · 1 санузл. · 2 этаж
от 3 829 000 ₽
→
На сайт застройщика