Перейти к контенту
Подбор и сравнение проектов домов от застройщиков Московской области
Подборщик домов
Калькулятор сметы
Калькулятор площади
Форум
Блог
Главная
›
Каталог проектов
›
Проект E-217-1D
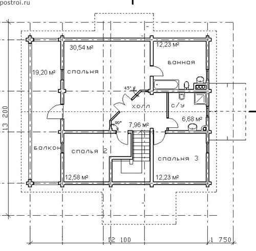
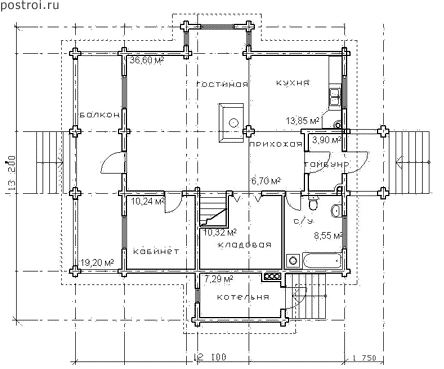
Проект E-217-1D
Застройщик: Юникс-Строй
217.0 м²
1 / 3
🏠
217.0 м²
📐
2 этаж
🧱
Дерево
Похожие проекты
Похожие по цене
Похожие по площади
Проект E-397-1K
3 этаж
от 32 562 200 ₽
→
Проект U-397-1K
3 этаж
от 32 537 600 ₽
→
Проект M-397-1K
3 этаж
от 32 586 800 ₽
→
Проект одноэтажного коттеджа "Нобис" из газобетона
3 спальн. · 2 этаж
от 12 111 000 ₽
→
Дом 3 спальни с балконом №351
2 этаж
от 8 747 600 ₽
→
Проект 3 спальни с балконом №351
2 этаж
от 8 747 600 ₽
→
На сайт застройщика