Перейти к контенту
Подбор и сравнение проектов домов от застройщиков Московской области
Подборщик домов
Калькулятор сметы
Калькулятор площади
Форум
Блог
Главная
›
Каталог проектов
›
Проект E-792-1K
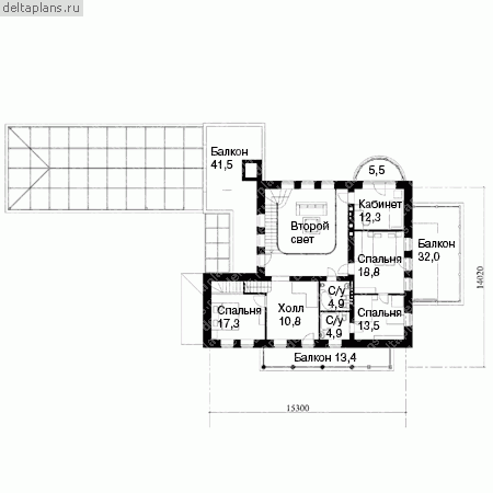
Проект E-792-1K
Застройщик: Юникс-Строй
792.4 м²
1 / 5
🏠
792.4 м²
📐
3 этаж
🧱
Кирпич
Похожие проекты
Похожие по цене
Похожие по площади
Проект S-792-1K
3 этаж
от 64 968 600 ₽
→
Проект S-795-1K
3 этаж
от 65 149 000 ₽
→
Проект S-881-1K
3 этаж
от 65 632 800 ₽
→
Проект S-792-1K
3 этаж
от 64 968 600 ₽
→
Проект S-795-1K
3 этаж
от 65 149 000 ₽
→
Проект одноэтажного коттеджа "Черкизово" из газобетона
3 спальн. · 3 этаж
от 32 838 000 ₽
→
На сайт застройщика