Перейти к контенту
Подбор и сравнение проектов домов от застройщиков Московской области
Подборщик домов
Калькулятор сметы
Калькулятор площади
Форум
Блог
Главная
›
Каталог проектов
›
Проект F-142-1K
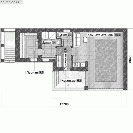
Проект F-142-1K
Застройщик: Юникс-Строй
142.1 м²
1 / 3
🏠
142.1 м²
📐
2 этаж
🧱
Кирпич
Похожие проекты
Похожие по цене
Похожие по площади
Проект V-166-1P
2 этаж
от 11 652 900 ₽
→
СК-4
5 спальн. · 3 санузл. · 2 этаж
от 11 650 000 ₽
→
Проект дома из газоблоков 16х12 ГББ-196: цена 8166000 руб.
6 спальн. · 2 санузл. · 2 этаж
от 11 648 000 ₽
→
Проект B-142-1P
2 этаж
от 9 941 400 ₽
→
Проект одноэтажного дома "Аккорд" из бруса
3 спальн. · 2 этаж
от 10 005 252 ₽
→
Проект одноэтажного дома "Лукоморье-2" из бруса
4 спальн. · 2 этаж
от 10 305 450 ₽
→
На сайт застройщика