Перейти к контенту
Подбор и сравнение проектов домов от застройщиков Московской области
Подборщик домов
Калькулятор сметы
Калькулятор площади
Форум
Блог
Главная
›
Каталог проектов
›
Проект F-163-1P
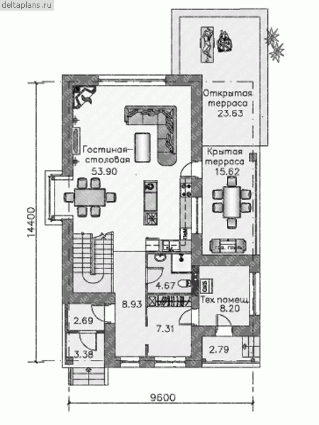
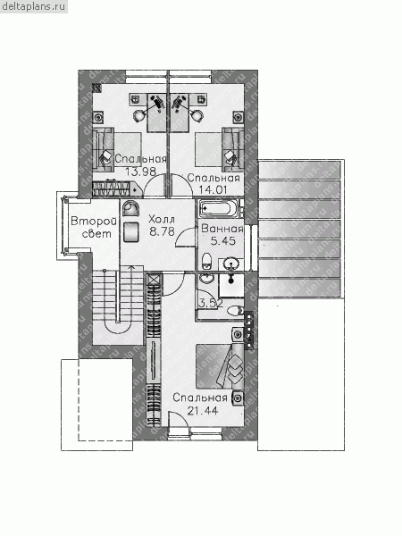
Проект F-163-1P
Застройщик: Юникс-Строй
163.8 м²
1 / 3
🏠
163.8 м²
📐
2 этаж
🧱
Пеноблок
Похожие проекты
Похожие по цене
Похожие по площади
Проект A-164-1P
2 этаж
от 11 466 000 ₽
→
Проект дома H-164-1P
2 этаж
от 11 466 000 ₽
→
Проект R-163-1P
2 этаж
от 11 463 900 ₽
→
Проект A-164-1P
2 этаж
от 11 466 000 ₽
→
Проект дома H-164-1P
2 этаж
от 11 466 000 ₽
→
Проект R-163-1P
2 этаж
от 11 463 900 ₽
→
На сайт застройщика