Перейти к контенту
Подбор и сравнение проектов домов от застройщиков Московской области
Подборщик домов
Калькулятор сметы
Калькулятор площади
Форум
Блог
Главная
›
Каталог проектов
›
Проект F-174-1P
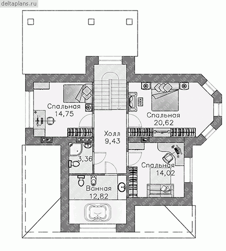
Проект F-174-1P
Застройщик: Юникс-Строй
174.9 м²
1 / 3
🏠
174.9 м²
📐
2 этаж
🧱
Пеноблок
Похожие проекты
Похожие по цене
Похожие по площади
Дом Головково из газобетона: заказать в Москве по низкой цене
4 спальн. · 3 санузл. · 2 этаж
от 12 240 000 ₽
→
Проект одноэтажного дома "Таремское" из бруса
2 этаж
от 12 238 305 ₽
→
Проект двухэтажного коттеджа "Яхонт" из газобетона
3 спальн. · 2 этаж
от 12 250 000 ₽
→
Проект двухэтажного коттеджа "Сахарный" из газобетона
3 спальн. · 2 этаж
от 10 008 000 ₽
→
Проект одноэтажного дома "Норвежец" из бруса
4 спальн. · 2 этаж
от 9 917 048 ₽
→
СМ-2
2 санузл. · 1 этаж
от 11 950 000 ₽
→
На сайт застройщика