Перейти к контенту
Подбор и сравнение проектов домов от застройщиков Московской области
Подборщик домов
Калькулятор сметы
Калькулятор площади
Форум
Блог
Главная
›
Каталог проектов
›
Проект F-314-1K
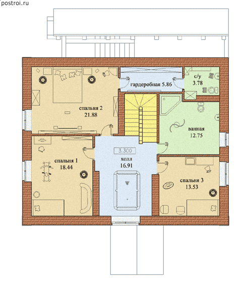
Проект F-314-1K
Застройщик: Юникс-Строй
313.6 м²
1 / 4
🏠
313.6 м²
📐
3 этаж
🧱
Кирпич
Похожие проекты
Похожие по цене
Похожие по площади
Проект W-313-1K
3 этаж
от 25 698 800 ₽
→
Проект T-315-1K
2 этаж
от 25 739 800 ₽
→
Проект D-172-1D
3 этаж
от 25 743 000 ₽
→
Проект L-313-1P
2 этаж
от 21 952 000 ₽
→
Проект W-313-1K
3 этаж
от 25 698 800 ₽
→
Проект T-315-1K
2 этаж
от 25 739 800 ₽
→
На сайт застройщика