Перейти к контенту
Подбор и сравнение проектов домов от застройщиков Московской области
Подборщик домов
Калькулятор сметы
Калькулятор площади
Форум
Блог
Главная
›
Каталог проектов
›
Проект G-140-1K
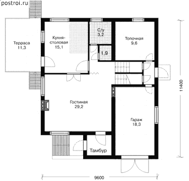
Проект G-140-1K
Застройщик: Юникс-Строй
140.3 м²
1 / 3
🏠
140.3 м²
📐
2 этаж
🧱
Кирпич
Похожие проекты
Похожие по цене
Похожие по площади
Дом из рубленного бревна «Зевс» | ЭкоТех
4 спальн. · 3 санузл. · 2 этаж
от 11 500 740 ₽
→
Проект каркасного дома КП-140
3 спальн. · 1 этаж
от 11 500 000 ₽
→
Vestendorf
от 11 500 000 ₽
→
Дом из газобетонных блоков С-141 ГБ «Монарх»
3 спальн. · 2 санузл. · 3 этаж
от 6 973 000 ₽
→
Дом из керамических блоков С-141 КЕ «Монарх»
3 спальн. · 2 санузл. · 3 этаж
от 6 973 000 ₽
→
Каркасный дом С-141 КР «Монарх»
3 спальн. · 2 санузл. · 3 этаж
от 6 614 000 ₽
→
На сайт застройщика