Перейти к контенту
Подбор и сравнение проектов домов от застройщиков Московской области
Подборщик домов
Калькулятор сметы
Калькулятор площади
Форум
Блог
Главная
›
Каталог проектов
›
Проект G-142-1D
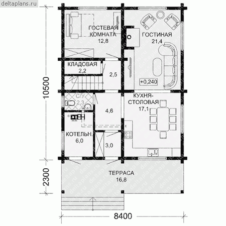
Проект G-142-1D
Застройщик: Юникс-Строй
142.0 м²
1 / 3
🏠
142.0 м²
📐
2 этаж
🧱
Дерево
Похожие проекты
Похожие по цене
Похожие по площади
Проект T-259-1K
2 этаж
от 21 288 840 ₽
→
Проект N-241-1P
3 этаж
от 21 287 000 ₽
→
Проект дома «Эллиот»
3 спальн. · 1 этаж
от 21 315 000 ₽
→
Проект одноэтажного дома "Аккорд" из бруса
3 спальн. · 2 этаж
от 10 005 252 ₽
→
Проект одноэтажного дома "Лукоморье-2" из бруса
4 спальн. · 2 этаж
от 10 305 450 ₽
→
Проект одноэтажного дома "Норвежец с топочной" из бруса
3 спальн. · 2 этаж
от 10 643 681 ₽
→
На сайт застройщика