Перейти к контенту
Подбор и сравнение проектов домов от застройщиков Московской области
Подборщик домов
Калькулятор сметы
Калькулятор площади
Форум
Блог
Главная
›
Каталог проектов
›
Проект G-154-1K
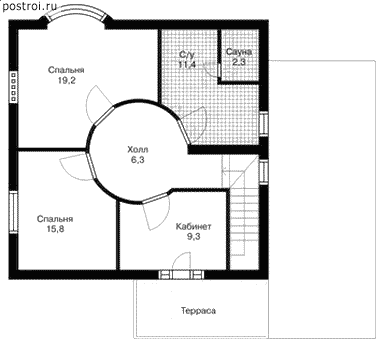
Проект G-154-1K
Застройщик: Юникс-Строй
153.7 м²
1 / 3
🏠
153.7 м²
📐
2 этаж
🧱
Кирпич
Похожие проекты
Похожие по цене
Похожие по площади
Проект двухэтажного дома "Велес-3" из бруса
3 спальн. · 3 этаж
от 12 600 570 ₽
→
Проект дома из керамоблоков 14х12 ТКБ-196: цена 8528000руб.
6 спальн. · 2 санузл. · 2 этаж
от 12 600 000 ₽
→
ПД - 509 - Строительство домов из Каркаса, СИП, Бруса под ключ
6 спальн. · 3 санузл. · 2 этаж
от 12 600 000 ₽
→
Дом из газобетонных блоков С-154 ГБ «Гармония»
3 спальн. · 2 санузл. · 2 этаж
от 6 784 000 ₽
→
Дом из керамических блоков С-154 КЕ «Гармония»
3 спальн. · 2 санузл. · 2 этаж
от 6 784 000 ₽
→
Каркасный дом С-154 КР «Гармония»
3 спальн. · 2 санузл. · 2 этаж
от 6 053 000 ₽
→
На сайт застройщика