Перейти к контенту
Подбор и сравнение проектов домов от застройщиков Московской области
Подборщик домов
Калькулятор сметы
Калькулятор площади
Форум
Блог
Главная
›
Каталог проектов
›
Проект G-174-1D
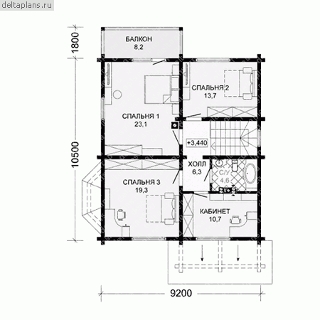
Проект G-174-1D
Застройщик: Юникс-Строй
170.2 м²
1 / 3
🏠
170.2 м²
📐
2 этаж
🧱
Дерево
Похожие проекты
Похожие по цене
Похожие по площади
Проект U-311-1K
3 этаж
от 25 538 900 ₽
→
Проект S-312-1K
2 этаж
от 25 543 000 ₽
→
Дом по проекту «Висбаден» - Золотое Сечение
3 спальн. · 2 санузл.
от 25 500 000 ₽
→
Проект J-170-1P
2 этаж
от 11 907 000 ₽
→
Проект M-170-1P
2 этаж
от 11 907 000 ₽
→
Проект W-170-1K
2 этаж
от 13 948 200 ₽
→
На сайт застройщика