Перейти к контенту
Подбор и сравнение проектов домов от застройщиков Московской области
Подборщик домов
Калькулятор сметы
Калькулятор площади
Форум
Блог
Главная
›
Каталог проектов
›
Проект G-195-1D
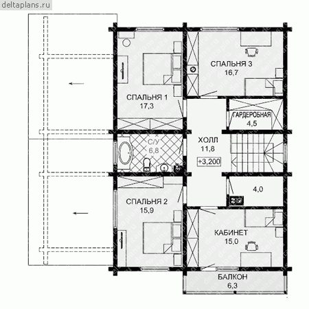
Проект G-195-1D
Застройщик: Юникс-Строй
195.7 м²
1 / 3
🏠
195.7 м²
🚿
2 санузл.
📐
2 этаж
🧱
Дерево
Похожие проекты
Похожие по цене
Похожие по площади
Проект двухэтажного дома "Эдельвейс" из бруса
2 этаж
от 29 361 327 ₽
→
Проект A-358-1K
2 санузл. · 2 этаж
от 29 331 400 ₽
→
Проект U-358-1K
2 этаж
от 29 329 760 ₽
→
Проект V-196-1K
2 этаж
от 16 050 680 ₽
→
Проект дома F-196-1P
3 этаж
от 13 692 000 ₽
→
Проект одноэтажного коттеджа "Русвен" из газобетона
3 спальн. · 2 этаж
от 11 965 000 ₽
→
На сайт застройщика