Перейти к контенту
Подбор и сравнение проектов домов от застройщиков Московской области
Подборщик домов
Калькулятор сметы
Калькулятор площади
Форум
Блог
Главная
›
Каталог проектов
›
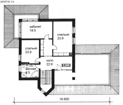
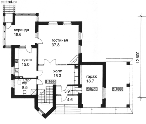
Проект G-217-1K
Проект G-217-1K
Застройщик: Юникс-Строй
217.3 м²
1 / 3
🏠
217.3 м²
📐
2 этаж
🧱
Кирпич
Похожие проекты
Похожие по цене
Похожие по площади
Проект D-217-1K
2 этаж
от 17 818 600 ₽
→
Проект D-217-2K
2 этаж
от 17 818 600 ₽
→
Проект N-217-1K
3 этаж
от 17 818 600 ₽
→
Проект D-217-1K
2 этаж
от 17 818 600 ₽
→
Проект D-217-2K
2 этаж
от 17 818 600 ₽
→
Проект N-217-1K
3 этаж
от 17 818 600 ₽
→
На сайт застройщика