Перейти к контенту
Подбор и сравнение проектов домов от застройщиков Московской области
Подборщик домов
Калькулятор сметы
Калькулятор площади
Форум
Блог
Главная
›
Каталог проектов
›
Проект G-262-1P
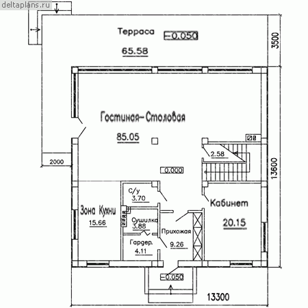
Проект G-262-1P
Застройщик: Юникс-Строй
262.0 м²
1 / 3
🏠
262.0 м²
📐
2 этаж
🧱
Пеноблок
Похожие проекты
Похожие по цене
Похожие по площади
Проект U-262-1P
2 этаж
от 18 340 000 ₽
→
Проект дома M-262-2P
3 этаж
от 18 340 000 ₽
→
Проект N-224-1K
3 этаж
от 18 351 600 ₽
→
Дом 4 спальни со вторым светом №371
2 этаж
от 16 631 000 ₽
→
Проект дома №371
2 этаж
от 16 631 000 ₽
→
Проект К-157 14 на 9, площадью 262 за 8 680 500 руб
4 спальн. · 2 этаж
от 8 680 500 ₽
→
На сайт застройщика