Перейти к контенту
Подбор и сравнение проектов домов от застройщиков Московской области
Подборщик домов
Калькулятор сметы
Калькулятор площади
Форум
Блог
Главная
›
Каталог проектов
›
Проект G-284-1P
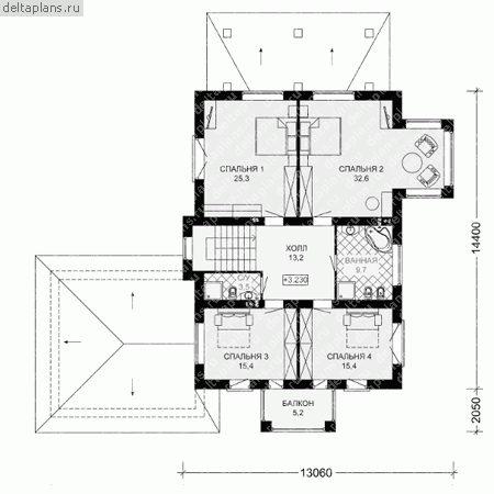
Проект G-284-1P
Застройщик: Юникс-Строй
284.4 м²
1 / 3
🏠
284.4 м²
📐
2 этаж
🧱
Пеноблок
Похожие проекты
Похожие по цене
Похожие по площади
Проект дома «Medford»
3 спальн. · 4 санузл.
от 19 910 000 ₽
→
Проект дома «Medford»
3 спальн. · 4 санузл.
от 19 910 000 ₽
→
Проект M-132-1D
2 этаж
от 19 902 000 ₽
→
Проект трехэтажного коттеджа "Богородитская" из газобетона
2 этаж
от 18 262 000 ₽
→
Проект дома AS-036
2 этаж
от 11 623 780 ₽
→
Проект U-284-1K
2 этаж
от 23 337 200 ₽
→
На сайт застройщика